Valencia_151_3D_Erdgeschoss_k
Valencia_151_Ansichten_k
Valencia_151_Erdgeschoss_k
Valencia_151_3D_Obergeschoss_k
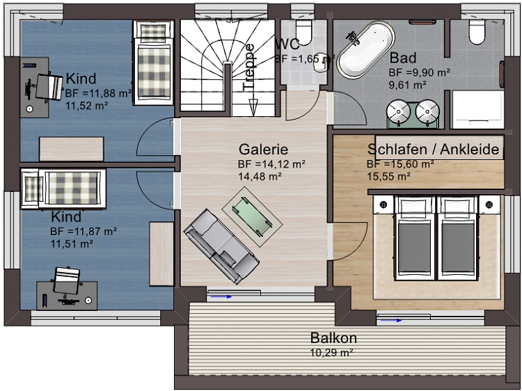
Valencia_151_Obergeschoss_k

Valencia 151

zurück zu Stadtvillen
 
Stadtvilla
Valencia_151
mira-fertighaus-
Pfeil_gruen_k
Bitte klicken Sie auf die Bilder
Bitte senden Sie uns Preise und Unterlagen zum Stadtvilla Valencia
Bitte füllen Sie alle mit * markierten Felder aus. (Pflichtfelder)
Anrede*
Vorname*
Name*
Straße/Nr.*
PLZ/Ort*
Telefon*
E-Mail*
 
Grundstück*


 
möchten Sie Eigenleistungen erbringen*

Fragen / Bemerkung / Wünsche
(Restzeichen: 3000)
 
Zum Schutz vor Spamattacken muss der links dargestellte Sicherheitscode (Zahlen-Buchstabenkombination) in das Eingabefeld übertragen werden!
 Grafik neu laden | Code anhören
 

Stadtvilla Valencia 151

Valencia_151_k
Darlehenssumme:
Kaufpreis:
Postleitzahl:
Ort:
Objektart:
Finanzierungszweck:

Die Nutzflächen - sowie Außenmaße   können je nach Wandaufbau
abweichen
Außenmaße
Nutzfläche
Kniestock
Dachform
11,96 m x 8,98 m
152 m²
Vollgeschoss
Walmdach 28°
151,68 m²
 
 
 
76,36 m²
 
75,32 m²

 
10,25
Nutzfläche
 
 
 
Erdgeschoss  
   
       
Dachgeschoss
 
inkl. Luftraum
Stadtvilla Valencia 151

 
Der Charme des Südens
Effizienzhaus 40
* 4 AUSBAU - Varianten
 Ausbauhaus * fast fertig * schlüsselfertig
* schlüsselfertig-plus
 
-
Effizienz 40
- Thermo - Außenwand
* Gebäudehülle Effizienz 40 förderfähig
* Alle Innen u. Außenwände doppelt beplankt
* Fenster mit 6- Kammernprofil und 3- fach -
 Verglasung

* Rollläden
* Luft-Wasser-Wärmepumpe /Fußbodenheizung
Wand_1_k
Iglu_csm_cdw_banner_professional_iglu_03_8c8c64e81f